Signed in as:
filler@godaddy.com
Signed in as:
filler@godaddy.com

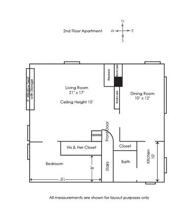
The second floor apt. entrance opens into a 15’ cathedral-style, 21' x 17' living room with exposed wood beams and wood floors. A 9’ window seat with French-style windows offers extra seating and lots of storage. Several built-in bookcases, a great nook for a desk, a deep walk-in coat closet and a wood-burning fireplace compliment this space. A separate 10’ x 12’ dining room offers another deep open storage area. The 10’ galley kitchen has two windows for plenty of natural light. The bathroom offers an open linen closet. The bedroom is 15’ long and narrow and offers a 12’ high double closet with additional storage on top. A double bed fits best but can accommodate a queen-size. The total apt. is approximately 900 sq. feet.
Fireplace tools and window treatments are also included. (Tenant is welcome to change or use their own)
Pets are welcome and no extra security deposit is required.
Laundry room (no coins needed) is located in the coach house and offers a commercial-size w/d with a wall cabinet for each tenant for extra storage.
Parking is conveniently located next to the coach house.
The monthly rent includes ALL utilities (gas, electric, heat, water, a/c, and high-speed internet) and parking.
Rent $ a month
Leased - Not Currently Available













1632 Enterprises. LLC